Client
Réalisation personnelle
Superficie
300 m2 habitables
Situation
BELGIQUE
Période
1992

Réalisation personnelle
300 m2 habitables
BELGIQUE
1992
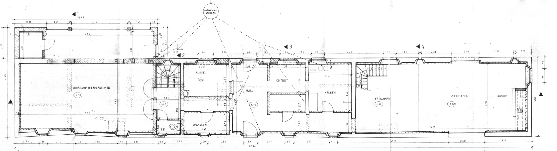
Un superbe projet, parti d’un bâtiment rural à l’abandon.
En 1992, Henri Lust est chargé de la transformation et reconversion d’un ancien et étroit bâtiment de ferme et ses dépendances, d’environ 40 m de long, en maison d’habitation sur l’ensemble de la bâtisse. La situation de ce bâtiment, situé à un quart d’heure du centre de Bruxelles, est exceptionnelle, en limite du petit village de Gaasbeek en Brabant Flamand, au bout d’un petit chemin aboutissant sur les champs à l’infini. C’est ce qui a décidé les propriétaires à en faire l’acquisition, malgré le challenge que constituaient les travaux à réaliser, du fait de l’état déplorable du bâtiment. Ayant eu connaissance de réalisations de ce type par l’architecte Lust, ils firent appel à ce dernier pour établir le projet et en assurer la réalisation. L’étroitesse du bâtiment ne permettait pas d’établir une circulation intérieure de bout en bout du bâtiment à l’étage, du fait de la toiture fortement mansardée, aussi deux quartiers distincts ont été établis, l’un pour les enfants, l’autre pour les parents, avec accès séparé pour chacun, l’appartement des parents étant établi à une des extrémités du bâtiment sur toute la largeur de l’étage, donnant sur une mezzanine surplombant le séjour avec sa grande cheminée à feu ouvert. Le résultat, malgré l’étroitesse du bâtiment, procure malgré tout une sensation d’espace du fait de l’agencement réalisé. La piscine intérieure, avec ses équipements permettant de maintenir une température élevée et l’hygrométrie adéquate de l’air, donne sur une plage intérieure communiquant avec l’extérieur par une large baie vitrée avec châssis coulissant.










